
十八平面积,十八万预算(仅设备不含装修)算下来每个平方面积仅花费一万块,拥有了一间涵盖3D影院、卡拉OK系统、数字音乐、NAS系统、智能控制、声学处理的影音系统。


项目基本情况:
该项目位于嘉和城,是南宁首屈一指的高档住宅区,多为独栋或连排别墅,业主作为成功人士,希望有一个给家人和朋友放松、娱乐的空间。
- 资金投入:18万(仅器材部分)
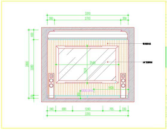
- 视听室空间信息:18平方米,5.7×3.3×2.9米
- 周边布局概述:视听室位于独栋别墅地下室,整个地下一楼作为综合娱乐中心,涵盖影音室、桌球室、游泳池、酒窖等。
- 用户使用需求:由本土著名设计师左家负责美学设计。客户提出要求:1、房间需要实现电影、唱歌、音乐功能,2、不改变美学设计的前提下,进行专业声学处理,3、设备部分预算18万,主要设备必须进口品牌,4、所有设备外摆,但一定要操作简单,稳定性强

主音箱:百里登Studio 60
本方案采用的百里登Studio 60音响系统,是好声音的根本保障,无论气吞山河的气势、磁性十足的人声,还是琴弦轻拨的细腻声,好的更真实的声音让你更好的体验到电影、音乐的灵魂。

低音炮:ULTRACUBE 12
好的产品就是不断的突破极限,把不可能变成现实,正如百里登的ULTRACUBE 12低音炮,迷你的体积内藏着3个低音单元,并且能够爆发出1950瓦的惊人功率。


从图中可以看出,加拿大圣歌MRX-510功放是整个系统的中心,选择它,除了因为具有欧美功放特有的醇厚、有力的输出特性,影院功放领域最好的ARC调教系统。IPAD分别包含:智能控制系统操作、点歌系统操作、数字音乐播放操作。


从做到右的柜子装满了三大系统:数字音乐播放、影院、卡拉OK系统

本方案首次采用的NAS系统加HIFI PC,一次性将大量的DSD数字音乐存储在NAS服务器中,由发烧配置的HIFI PC进行音乐解码,选曲等操作通过APP在IPAD上进行。单首歌曲容量几百兆甚至几个G,即便是偏向AV的圣歌功放搭配百里登音箱,出来的细节、层次、乐感、动态等,完全不输中等档次的纯HIFI系统。而在操作便利性、专辑交流的便捷性、听歌的成本上,远胜传统的HIFI模式。

超级无敌炫酷的智能控制界面,集成了所有影音设备和灯光的控制,不仅让操作便捷轻松,影音室的逼格瞬间爆棚。


声学处理:透声结构方式是子步影音最擅长的做法之一,这样既要保留原有的设计效果,又要保证声学的效果。大师的设计就是厉害,简洁却又大气迷人。

系统交付时客户感叹道:一套住宅里再奢华的装修、再高级的家具,只有拥有了视听室,整个空间才动了起来,以后每天一家老小饭后一起唱唱歌,或者看看大片听听音乐,日子舒坦很多。





