方案实施方类别:影音设计师
案例类别:商用案例
整体资金投入:130万元
视听室空间信息:168平方米
位置及周边概括性描述:多功能电影院
用户使用需求:三亚香水湾阿尔卡迪亚度假酒店地处迷人的香水湾旅游度假区。酒店内配套设施完善,酒店影院给酒店添色不少。此酒店影院还是一个多功能会议室,不仅为客人度假期间增加娱乐享受更为工作人员提供了一个舒适专业的会议场所!该多功能影院使用智能控制主机,搭配APP软件,省去多个遥控器操控的混乱,提高智能操作的享受。
设计公司:TECHLAND蓝本影音
总部设计师:李晓程
所用器材列表
视频设备
放映机:Barco DP2K-10S×1
透声屏幕:me2 screen 288″ 2.35:1 弧形微孔透声画框投影幕×1
主动式3D发射器:Barco 与投影机配套×1
3D眼镜:Barco 与投影机配套×50
数字影院处理器:me2 MCP750×1
专业影院前级处理器:Storm audio ISP 3D.16×1
4K蓝光机:OPPO UPD-203×1
影柜:me2 MDP1.3 高清数字媒体播放器×1
影柜服务器:me2 MDS3000 高清数字媒体内容服务器×1
硬盘:与影柜服务器配套×16
机顶盒:华为 华为荣耀4K高清智能网络电视机顶盒
影院音频设备
主音箱:me2 JBL×3
顶置音箱:me2 JBL×8
环绕音箱:me2 JBL×12
重低音音箱:me2 JBL×12
主扩后级功放:me2 7350×2
主扩后级功放:CROWN XTI4002×2
低音后级功放:me2 A1×2
会议室音频设备
1拖4 会议(鹅颈话筒×4):me2 MW54T×2
1拖4 会议(手持话筒×2+领夹话筒×2):me2 MW54T×1
调音台:Midas MR12×1 12路数字调音台
定制触屏电脑:SanyTouch TSYD108-21.5×1
管线部分
高级音箱线:MPS C-200MK3×400
高级音箱线:MPS C-400×350
4K-HDMI线:MPS HD-203 15M-HDMI×2
4K-HDMI线:MPS HD-203 2M-HDMI×6
电源时序器:me2 AC208×4
音箱吊架:me2 定制×16
其他线材
信号线:168网OPT专业双芯屏蔽信号线×150
电源线: LED电源线(用于星空幕)×250
电源线: LED电源线(用于灯带) ×800
智能控制系统设备
智能控制主机:Crestron CP3×1
红外发射棒:Crestron IRP2×4
4路可控硅调光控制模块:Crestron DIN-1DIM4×1
8路继电器模块:Crestron DIN-8SW8×1
12键面板:Crestron C2N-DB12-W-S×1
APP软件:Crestron×2
平板显示屏:Apple×1
RS232控制线:Crestron×4
灯光系统设备
星空幕:定制×36
灯带:定制 9.5W/m 2700K×250
灯带驱动器:A&S 12V 20A×18
筒灯:A&S 3000K 24° ×42
日光灯:A&S 3000K ×3
效果帕灯:Color SL-LP18×8
效果光速灯:Color SL-LB200×4
效果染色灯:Color SL-LW108×2
灯光控制系统:Color APP-WIFI-CONTROL×2
电源时序器:me2 AC208×1
控制终端:Apple iPad×1
影院的构建过程、声学和光学处理及特别设计
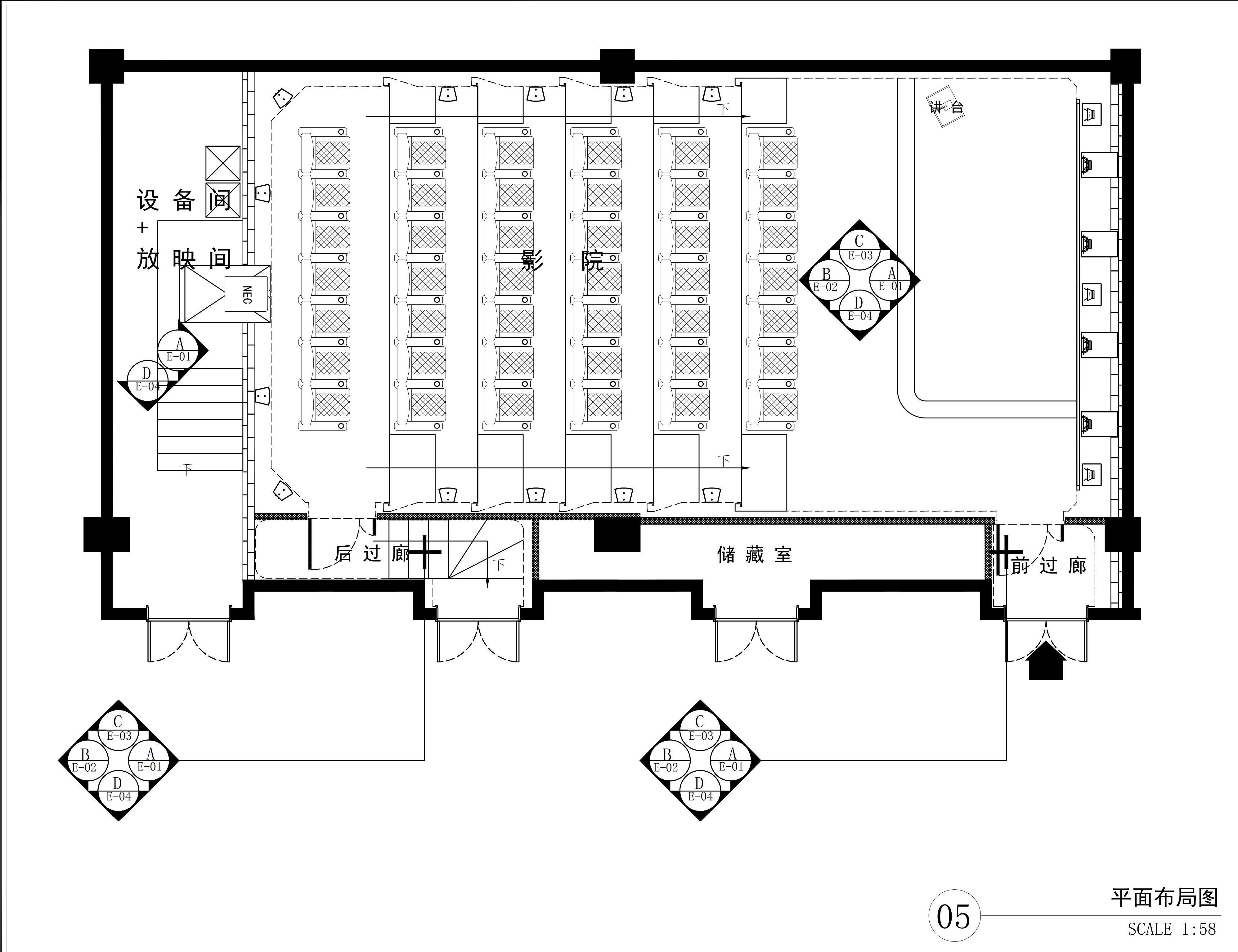
影音室原始结构设计如下图。
平面布局图
此影院是一个多功能会议室,因为多功能厅的音频扩声系统由于需要同时满足人声(会议)、音乐播放声(电影播放)等多种需求,所以在音箱的合理安装位置、功率大小、话筒的数量、音频处理方面需要着重考虑。
除此以外,多功能会议厅音视频系统还有:视频显示系统、音频扩声系统、会议发言讨论系统、音视频信号处理系统、中央控制系统、远程音视频会议系统、同声传译系统、舞台灯光系统等组成。要满足以上的要求,设计师花费了不少的心思。
影院的整体装修风格打破了传统的会议室给人的一种严肃无趣的感觉,呈现出典雅又不失放松的感觉。
影院还注重智能便捷,使用智能控制主机,搭配APP软件,省去多个遥控器操控的混乱,提高便捷操作的享受。
系统调试与设计者心得
典雅、轻松、便捷,就是这个影院最终呈现出来的。从装修风格到所有设备的运用,我们都经过多次调试,专业严谨的服务态度,让我们得到了酒店方一致好评!
















