案例背景
很多人都梦想拥有一间属于自己的家庭影院,甚至在某一时刻就心血来潮萌生了搭建影院的想法。但是,往往因为没有足够可以利用的空间而放弃了这一想法,最终未尝所愿。其实,当你有了足够的决心和科学的施工方案,即使在狭小的贮藏间、地下室,又或是转角一隅,都可以通过自身努力打造出一个精彩的“观影国度”。

在本案例中,业主利用不到10平米的狭小空间,搭建起了一间一应俱全的华丽家庭影院。对于孩子来说,这个影院真是完美的尺寸;对于成人来说,也能有精彩的观影体验。下面,近距离赏析这个小空间的家庭影院是如何搭建的。
施工方案
整个策划阶段花了三个月时间,施工建造花了四个月。另外,整个工程的总成本仅12000美元,设备和建造材料各占一半成本。业主拥有自己的家具,来自于以前的剧场,除了PS4、变形透镜和SVSound低音炮,其他所有设备都是重新利用的。

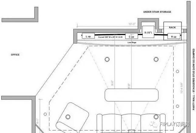
业主的目标是在引进“大剧院”特点的基础上,最大化的利用狭小的空间,同时保持整体设计风格干净、明快。对于这个案例,首先做的事情就是琢磨前墙壁能够利用的最大屏幕尺寸,同时还要考虑从前墙壁到后面墙壁的实际的投影距离。其他一切的设计,从舞台和吊顶的尺寸到墙板和座位的设计与布局等等,都通过科学、有效的测量来决定施工方案。
设备安装
原本计划安置一个16:9屏幕,但业主发现Panamorph CineVista固定式变形镜头仅花费了1000美元,这样他大胆的决定安装一个Elite Lunette106英寸、2.35:1比例的曲面银幕。 Lunette的弧形的框架设计消除了2.35:1(宽屏)常会出现的“枕形”效应(枕形效应是当宽屏投影时,顶部和底部的中心出现下垂向内,出现一个沙漏的形状,因为屏幕中间和屏幕底部的投射不均匀),尤其是在如此短的投影距离上。9英寸的座位观影距离对应2.5倍的画面高度和42度的视角,简直是完美的1080P画面。

地下室后墙有一个凹陷的窗户,这将被完全覆盖和提供一小块位置给投影机。以往业主建造的小影院,由于低矮的天花板,不得不使用“绳灯”。而这次它如愿以偿使用了LED灯。


面对如此狭小的空间,业主不敢直接把扬声器放置在透声屏的后面。考虑到在银幕墙后面紧接着的是贮藏室,于是征用了贮藏室的一些空间用于把设备架放置在墙角和放置低音炮在银幕后面。低音炮壁龛里安放的是SVSound SB13-Ultra。这张照片只是弧形舞台的局部框架,光看这里很多家庭影院业主都非常喜欢。

环绕声扬声器被安装在四周转角壁柱顶上。除此之外,它被大量的岩棉填充作为低频陷阱,形成所谓的superchunk低频陷阱。沙发背拉出里后墙几英寸的地方,这样能让后置扬声器与听音者形成110度的角度。考虑到房间的形状,业主决定保留5.1环绕声道而不纠结于考虑后包围式环绕方式。

声学处理
虽然业主开始并没有全力以赴去做好声学设计,但是四周墙壁多处都被5/8英寸石膏板覆盖,另外石膏板之间用了Green Glue复合式绿色隔音胶处理。考虑到后墙窗户会有街道传来噪音和光线,它采用两块5/8石膏板、Green Glue隔音胶和织物板进行密封处理。

其实家庭影院的声学处理是需要格外注意的,尤其是听音位置的低频驻波,这个位置非常接近低频陷阱区域。除了环绕声扬声器壁柱增加低频陷阱外,业主安装玻璃纤维吸音板在拱腹区域的后面,而不是直接放置低音炮和设备架。另外,他在两侧墙壁使用了Roxul Comfortboard IS材料作隔音,这种材料类似于Owens-Corning 701具有优秀的吸音特性,它一般用于专业的录音室。
设备调试
为了保持影院较低的预算,业主使用了Epson PowerLite Home Cinema 8350投影机。相比PanamorphCineVista变形镜头,它没有花费多少钱。业主把Panamorph CineVista放置在了爱普生投影机主镜头的前面。这些设备都挂在自制的挂架上。这个投影机不支持3D功能,但是它搭配变形镜头和Onkyo TX-NR818AV功放能达到恒定图像高度的效果(即使改变画面比例为4:3、16:9或2.35:1,画面高度都会保持不变)。最伟大的时刻是:当业主打开投影机画面填充到银幕后,又大又漂亮的2.35比例画面完美的呈现在他眼前的时候。

特别令业主自豪的是隐藏式的设备架,业主花费了很多时间来弄清楚如何让设备架门完美的隐藏。它看起来像一个标准的3/4英寸厨房橱柜门,但是它实际上有两个部分组成,通过两块面板榫接起来。设备放置在被覆盖有织物材料的门背后,它紧接着低音炮的壁龛。这些系统通过RF控制,所以不用打开门就可以直接操控。

SVSound低音炮
这次案例里值得着重介绍的是低音炮。低音炮是业主为这间影音室特意新购置的,业主一直以来对美国低级低音炮品牌SVSound非常信赖,在对比众多品牌型号后,毅然决定使用SVSound SB13-Ultra。SB13-Ultra在先前型号的基础上有很大提升,它在DSP的flash文件(均衡器和限制器/压缩机算法)上做了修正,在限制下有更长的线性冲程和更低的失真;内阁的空间由于切除了隔板也变得更高,这也有利于改善深低音的效率和声音更深的扩展;面漆现在是采用新版的6面黑色钢琴烤漆或者是黑橡木单板来匹配SB13-Ultra。

在用SB13-Ultra观看《钢铁侠2》的蓝光电影时,钢铁侠在空中与战机周旋,由右往左、从上到下的快速扫过的低频反应速度非常快,每一次搏击配上低频音效,让画面更紧张、刺激,比在电影院观影有更强烈的视听享受,SB13-Ultra低音炮展现出的低频反应速度是令人非常惊喜的!

而且当搏斗摔下时的低频音效也是沉潜有劲,现场听起来相当过瘾。当整个低频音效开展开来,夹杂着爆炸场面,SB13-Ultra的低频力度震撼整个现场,金属撞击的低频质地强猛扎实,速度很快、不嗡不吵,有沉稳的力道。


